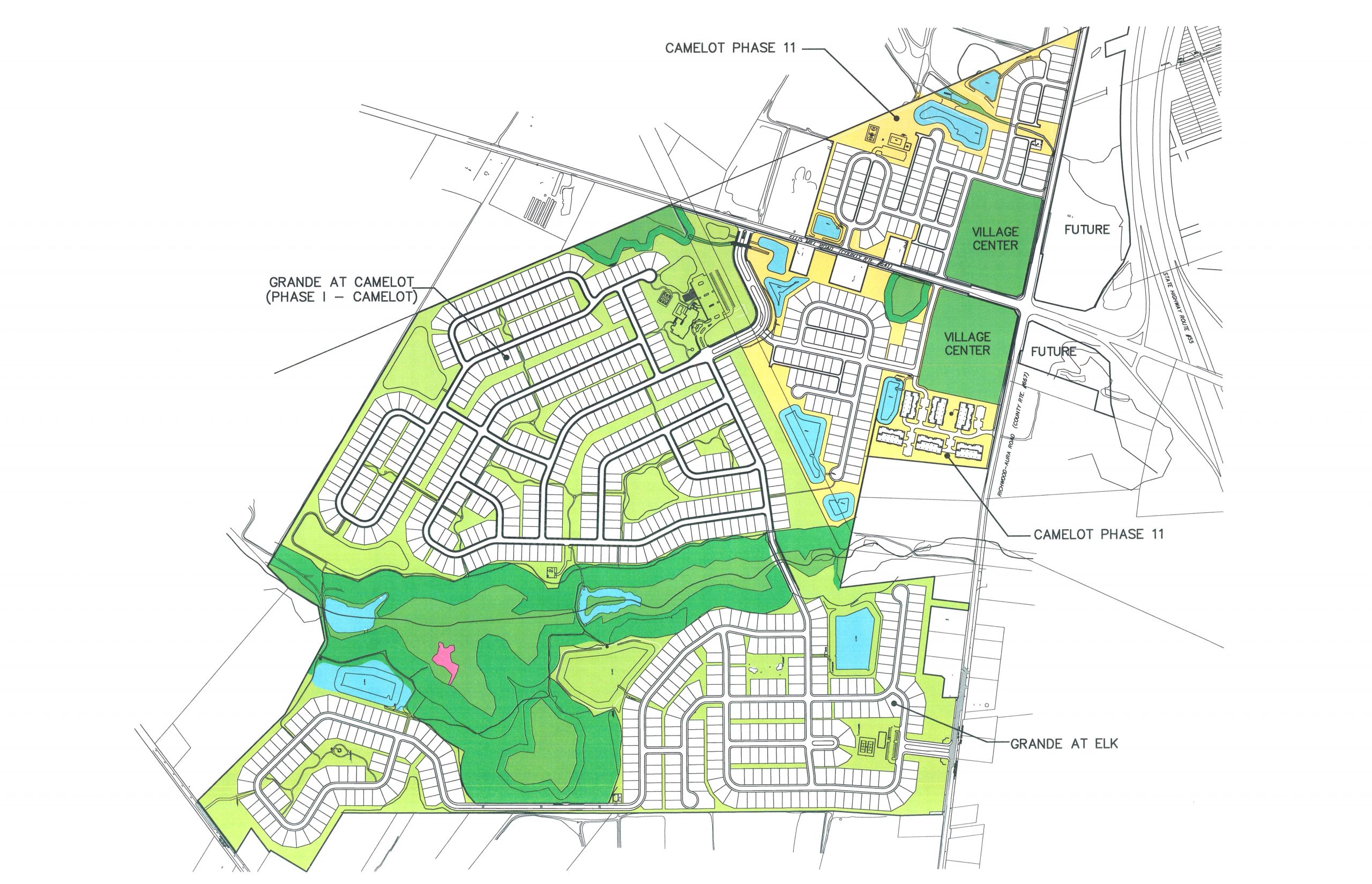
Camelot & Aura Multi-Use Development
Camelot is in Glassboro, Aura is in Elk Township.
Glassboro, Gloucester County, New Jersey
CES provided land use planning, site plan and subdivision design, site surveying and environmental engineering for this project.
Borough of Glassboro and Township of Elk Gloucester County, New Jersey
- Overall Land Use Planning
- Site Plan and Subdivision Design
- Site Surveying & Environmental Engineering
- Permitting and Construction Stakeout Services for Beazer Homes, DR Horton, Inc., Fieldstone Associates, Ryan Homes, Canuso, and Chiusano Homes



